公寓案例當前位置:首頁>產品展示>公寓案例

- 詳細介紹


項目地址:香榭麗舍項目風格:美式風格
設 計 師:姜鎮剛
項目經理: 毛 工
開工日期:2018年4月13日
美式風格:家居自由隨意、簡潔懷舊、實用舒適;暗棕、土黃為主的自然色彩;歐洲皇室家具平民化、古典家具簡單化;家具寬大、實用舒適;側重壁爐與手工裝飾,追求粗獷大氣、天然隨意
設計師:姜鎮剛

項目經理:毛工

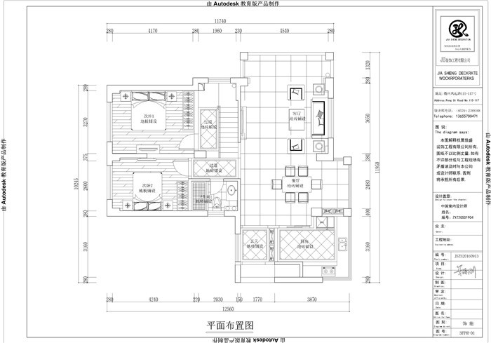
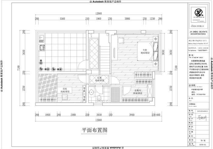
平面布置圖:


客廳效果圖:

主臥效果圖:

臥室效果圖:

業主、設計師、項目經理開工合影:

禮炮慶祝開工大吉:

舉杯慶祝 開工順順利利:

門套保護以防施工過程磕碰到:

煤氣表盤保護:

下水管保護蓋以防堵塞:
水電完工:








泥工完工:







公司榮譽:


衢州市佳盛裝飾工程有限公司
地址:浙江省衢州市西區雙嶺南路285號(翡翠灣小區東側)
電話:0570- 3068373
手機:13867013688
聯系人:周先生

衢州市佳盛裝飾工程有限公司
地址:浙江省衢州市西區雙嶺南路285號(翡翠灣小區東側)
電話:0570- 3068373
手機:13867013688
聯系人:周先生
網址:www.sdafled.cn
- 上一個:衢州公館俞總 下一個:郁金香郡返回產品列表



